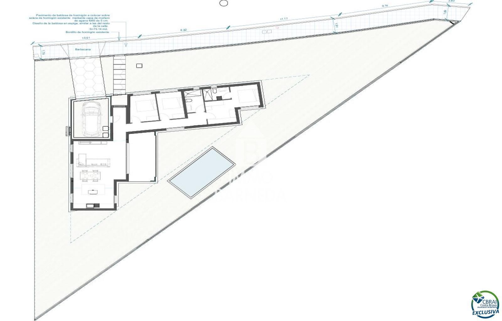
Excelente oportunidad para adquirir una parcela urbana esquinera de 777m² ubicada en la tranquila y bien conectada zona de Mas Pau. Terreno totalmente edificable, ideal para desarrollar una vivienda unifamiliar moderna con jardín.
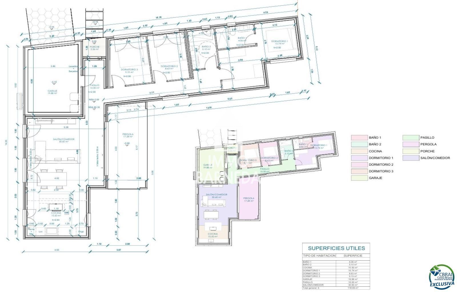
Se entrega con el proyecto realizado con Modular Home, la empresa española mas prestigiosa en viviendas modulares de hormigón. Se ha planteado una casa de planta baja en forma de L, con pérgola y piscina con orientación sur. Existe la posibilidad de modificar algunas partes del proyecto, listo para solicitar la licencia de obras. Ideal para quienes buscan construir a medida en una zona de crecimiento residencial.
Muy buena ubicación y orientación.
Para más información o visitas, contáctenos sin compromiso.